Quadrilocale in vendita

Silea, Via Enzo Venturini - Lanzago
€ 270.000
4 locali 4 locali
125 Mq 125 Mq
2 bagni 2 bagni

Quadrilocale in vendita

Silea, Via Enzo Venturini - Lanzago

Descrizione annuncio

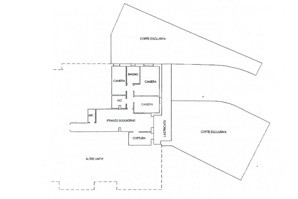
L'Immobiliare Lanzaghe Sas di Gentilini Francesco C. propone appartamento quadrilocale al piano terra con giardino in zona di Silea. L'immobile nasce nel 2005 e ci accoglie con ingresso indipendente, soggiorno con cucina separata, disimpegno, tre camere da letto di cui una matrimoniale, una doppia ed una singola, un bagno finestrato con box doccia ed un secondo bagno non finestrato con box doccia. Completa la proprietà giardino privato di circa 150 mq. A concludere presenza di garage di circa 20 mq al piano interrato e posto auto di proprietà interno al condominio. La pavimentazione dell'intera abitazione è in piastrelle ad eccezione delle camere, le quali sono in parquet. I serramenti interni sono in legno con doppio vetrocamera, mentre quelli esterni sono scuri in legno. La soluzione immobiliare è pratica ad ogni servizio principale, nel raggio di 300 metri troviamo supermercato, fermata dell'autobus, farmacia e scuole.

Mostra tutto

Nelle vicinanze

Trasporto pubblico Trasporto pubblico
Lanzago
Lanzago
350 m
Trasporto pubblico
810 m
Scuole Scuole
Scuole
510 m
Scuola Elementare A. Vivaldi
1,1 Km
Scuola Media statale "Marco Polo"
1,2 Km
FISM Treviso
1,5 Km
ENGIM Veneto SFP Turazza
1,7 Km
Farmacia Farmacia
Farmacia del Sile
240 m
Farmacia Internazionale
740 m
Farmacia alla Fiera
1,9 Km
Farmacia Dodi
2,0 Km
Farmacia Selvana
2,3 Km
Ospedali Ospedali
Ospedale Regionale "Ca'Foncello"
2,0 Km
Pronto Soccorso Ospedale "Ca' Foncello"
2,0 Km
Ospedale Ca' Foncello
2,3 Km
Supermercati Supermercati
Alì
220 m
Amico Bio
220 m
Cadoro
440 m
Lidl
970 m
inCoop
1,7 Km
Negozi Negozi
Linea Intimo
230 m
Panificio Conte
1,2 Km
Manai
2,4 Km
Bar Bar
B.square
210 m
Bar Trattoria Postumia Di Rizzoni Bruno & C. Snc
220 m
Bar
860 m
Le Bricole
2,3 Km
Bar Ganassi
2,7 Km
Ristoranti Ristoranti
Trattoria ae Bae
230 m
Pizzeria Trattoria Nuova Parigi
420 m
Pizzeria Spaghetteria Mare Chiaro
420 m
Pizzeria Arcobaleno
690 m
Trattoria da Dino
780 m
Mostra tutto

Caratteristiche

Rif.:
61164575
Piano:
Terra con giardino di 2 con ascensore
Totale piani:
2
Box:
1
Posti auto:
1
Camere da letto:
3
Mostra tutto
Prezzo Prezzo
€ 270.000
Rata mutuo Rata mutuo
€ 1.283 / mese
Proponi il tuo prezzoProponi il tuo prezzo
Immobile valutato con T·Valuta

Classe Energetica

Questo immobile è esente da classe energetica
Anno di costruzione:
2005
Riscaldamento:
Autonomo
Tipo impianto:
A radiatori
Tipo alimentazione:
Metano

Ti interessa visionare l'immobile?

Fissa un appuntamento  Fissa un appuntamento

Richiedi informazioni

Clicca su Leggi per aprire l'informativa
* Questi campi sono obbligatori

Calcola il tuo mutuo

Semplice e senza impegno
Anticipo

( % )
Mutuo

( % )

pochi semplici passi

inserisci i tuoi dati
Questionario completato
Grazie per aver richiesto un appuntamento senza impegno con un nostro Consulente del Credito e Assicurativo.

Hai inserito correttamente tutti i dati necessari e a breve riceverai una e-mail con un link da convalidare per inviare i tuoi dati.
Affiliato
Immobiliare Lanzaghe Sas
Via Lanzaghe, 35 31057 Silea (TV)

Il nostro staff


  • Carlotta Piovesan
    Affiliata

  • Francesco Gentilini
    Affiliato
Via Lanzaghe, 35 31057 Silea (TV)
Zona: Silea-San Biagio di Callalta
Mostra su mappa
Affiliato
Immobiliare Lanzaghe Sas
Via Lanzaghe, 35 31057 Silea (TV)

2026 Tecnocasa Franchising S.p.A. - P. IVA 08365160152 - Via Monte Bianco 60/A 20089 Rozzano (MI). Ogni agenzia ha un proprio titolare ed è autonoma. Privacy policy | Policy utilizzo | Cookie policy